yy

用户名:
密  码:


1.减温减压装置系列
2.工业滤水器系列
3.工业消声器系列
4.多功能复式滤油机系列
5.胶球清洗装置系列
6.新型旋膜式除氧器系列
7.低耗高效射水抽气器系列
8.检修盘车系列
9.智能加药装置系列
10.化学补水节能装置
11.自吸式飞灰等速取样器
12.管道补偿器系列

>>>更多

当前位置:首页 >>> 产品介绍 >>> 工业消声器系列 >>> 消声器安装图


锅炉点火排汽消声器(TB型)、蒸汽安全门消声器(TA型)、低压蒸汽消声器(TD型)
外形图

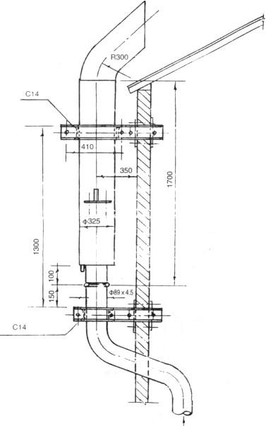
锅炉点火排汽消声器(TB型)、蒸汽安全门消声器(TA型)、低压蒸汽消声器(TD型)
安装例图


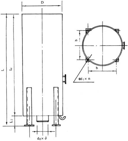
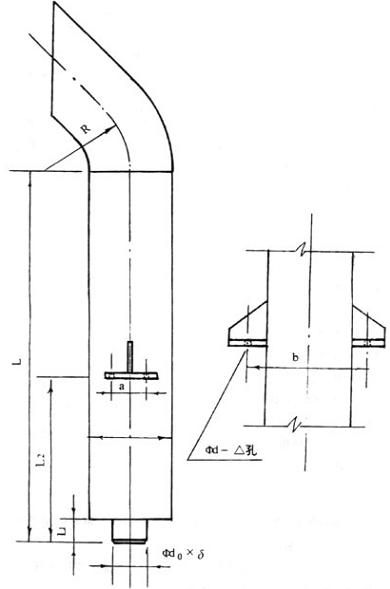
高压除氧器排汽消声器(TDY系列)
外形图

高压除氧器排汽消声器(TDY系列)
安装例图


GF风机消声器(消音器)
外形尺寸图


 

 
版权所有:连云港市宏庆电力辅机开发有限公司