|
|
|

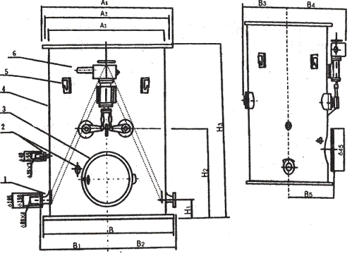
SF型双栅格网板收球网外形简图
|
序号\类别 |
SF8 |
SF9 |
SF10 |
SF12 |
SF14 |
SF16 |
SF18 |
|
A1 |
φ975 |
φ1075 |
φ1175 |
φ1400 |
φ1620 |
φ1820 |
φ2045 |
|
A2 |
φ920 |
φ1020 |
φ1120 |
φ1340 |
φ1560 |
φ1760 |
φ1970 |
|
A3 |
φ820×7 |
φ920×7 |
φ1020×8 |
φ1220×8 |
φ1420×10 |
φ1620×11 |
φ1820×12 |
|
B |
φ975 |
φ1075 |
φ1175 |
φ1400 |
φ1620 |
φ1820 |
φ2045 |
|
B1 |
505 |
555 |
605 |
720 |
830 |
932 |
1040 |
|
B2 |
505 |
555 |
605 |
720 |
830 |
932 |
1040 |
|
B3 |
497 |
547 |
600 |
680 |
800 |
892 |
902 |
|
B4 |
763 |
813 |
863 |
960 |
1103 |
1300 |
1420 |
|
B5 |
520 |
570 |
620 |
790 |
900 |
922 |
1106 |
|
H1 |
180 |
180 |
190 |
200 |
200 |
227 |
220 |
|
H2 |
580 |
661 |
732 |
879 |
950 |
1220 |
1210(1040) |
|
H3 |
1300 |
1400 |
1450 |
1700 |
1900 |
2350 |
2350(1800) |

SD型单栅格网板收球网外形简图
|
序号\类别 |
SD4 |
SD5 |
SD6 |
SD7 |
|
A1 |
φ535 |
φ640 |
φ755 |
φ860 |
|
A2 |
φ495 |
φ600 |
φ705 |
φ810 |
|
A3 |
φ426×5 |
φ529×6 |
φ630×6 |
φ720×7 |
|
A4 |
313 |
364.5 |
415 |
460 |
|
H1 |
1150 |
4300 |
1600 |
1800 |
|
H2 |
400 |
400 |
400 |
400 |
|
H3 |
250 |
250 |
250 |
250 |
|
B |
500 |
550 |
600 |
645 |
|
C |
308.5 |
360 |
410.5 |
455.5 |
|
D |
393.5 |
445 |
49.5 |
540.5 |
|
E |
16-M20 |
16-M20 |
20-M22 |
21-M22 |
收球网:安装于凝汽器循环水管路的出水管段上.它的作用是将随系统运行的清洁胶球从冷却水中分离出来.
<了解更详细>
胶球清洗泵:胶球清洗装置系统中使海绵胶球不断循环往复的动力设备.
<了解更详细>
装球室:胶球清洗装置系统中用于放球,取球,存储和观察清洁胶球循环情况的胶球存储器.
分汇器:控制胶球在清洗系统中需进行清洗的一侧运行.
清洁胶球:凝汽器胶球在线清洗系统专用胶球.
<了解更详细>
旋转反冲洗强排污二次滤网:安装于凝汽器循环水管路的进水管段上.凝汽器循环冷却水二次过滤网,以改善胶球清洗系统清洁胶球的运行环境,污杂物可通过定期排污而排出循环水系统.此滤网也可单独使用于需要净化过滤循环水系统.
<了解更详细>
其它链接:
胶球清洗装置系统主页面
相关链接:
凝汽器胶球清洗装置电子版说明书
旋转反冲洗强排污二次滤网电子版说明书
|
|
|
|